Spijkerkade 4-6

type:
year:
2022 - present
location:
Amsterdam Noord | Netherlands
status:
design development

In the historically rich yet evolving landscape of Hamerkwartier, Amsterdam North, Allard Architecture has been commissioned to reimagine Spijkerkade 5-6, transforming this former industrial area into a vibrant mixed-use development. The concept aims to blend residential spaces, offices, and hospitality venues, breathing new life into this storied district.

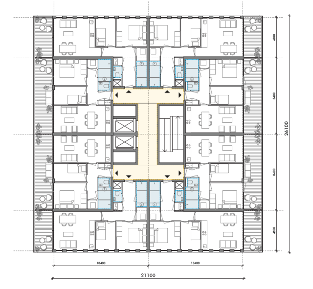
Central to the development is the introduction of a public street that bisects the area, creating opportunities for open spaces where people can sit, play, and enjoy a break from the busier thoroughfares. This design element fosters a familiar and welcoming vibe, enhancing the community feel of the neighborhood.

The larger facades facing Spijkerkade will pay homage to the area's industrial past, integrating historical elements into their design. The architectural approach emphasizes variety in materials and facade treatments, ensuring that while each element is distinct, they collectively harmonize. Repeated motifs and complementary materials create a cohesive yet dynamic aesthetic.

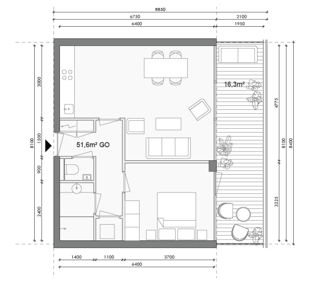
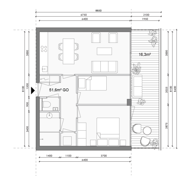
The new development is thoughtfully integrated with its surroundings, extending and connecting the 9-meter lines of adjacent buildings and the green roof lines, forming a continuous and unified structure. Green roofs are a prominent feature, some even extending into green facades, adding a lush, verdant touch to the former industrial site. This blend of green elements not only enhances the aesthetic appeal but also contributes to the area's sustainability and biodiversity.

Through this innovative concept, Allard Architecture aims to create a development that respects the historical context of Hamerkwartier while fostering a vibrant, green, and harmonious urban environment. The project will seamlessly integrate with the existing fabric, enhancing the neighborhood's character and providing a diverse and welcoming space for all.

Project Partners

team:
Allard Meine Jansen
Andreas Baumer
Paul Walther

Related projects