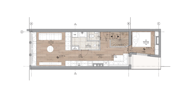
Allard Architecture was asked to replace the foundation and renovate this charming canal house situated on the historic Herengracht. The property consists of a commercial space on the groundfloor (jewellery store in the 80’s) with 4 floors on top used for housing. Over the years, the narrow and small floor levels resulted in clunky and disorganized outdated spaces, not respecting the monument. The current owner therefore decided to bring the monument back to life and restore it to its full potential.
The scarcity of space lead us to only work through precise and functional interventions from re-organizing the circulation, bathrooms to bespoke interior applications. Allard Architecture carried out an extensive staircase study to allow easy and efficient access to each floor, especially to the attic. In addition to space-saving solutions, our client wanted the house to have modern, high-end finishes. We provided in-house advice in the field of interior design. Together with the interior builder Kluster we designed modern interiors that fit this beautiful monument on the Herengracht.
Project Partners
Quinten Boumann
Valerie Smalen
Gijs Bouwens
Robbe Vandewyngaerde
Kluster VOF

